Listing Tools

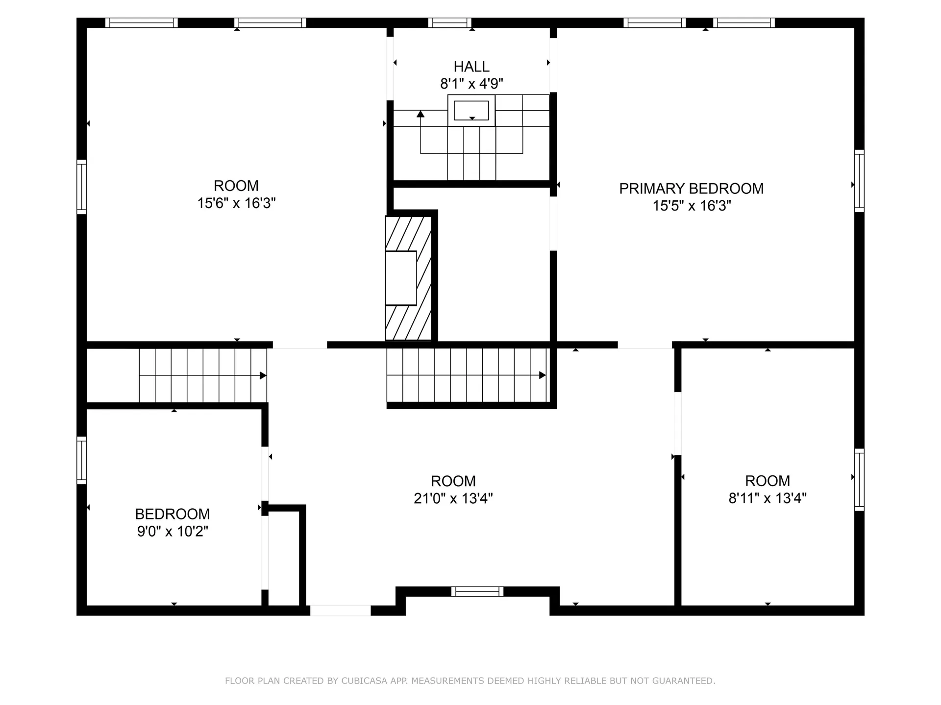
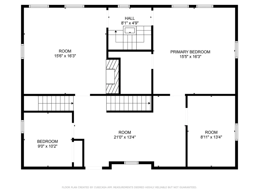
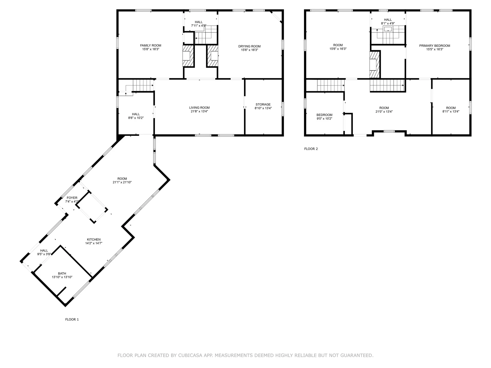
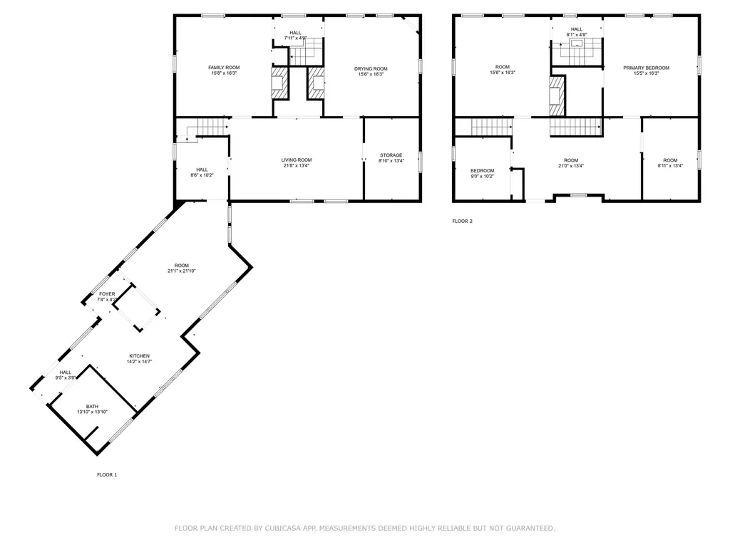
The Historic Captain Jonathan Currier House -Step back in time with this remarkable piece of South Hampton history. Built circa 1742 by Captain Jonathan Currier whose family were among the early settlers of what became known as Currierville - this is the oldest home still standing in the area. Located at the charming three-way intersection of Hilldale Avenue, Currier Street, and Lone Goose Road, the home faces south toward the crossroads and sits close to the road, just as it did nearly three centuries ago. This classic 2½-story wood-frame Georgian-style residence features a side-gable roof, central brick chimney, and timeless clapboard siding. The symmetrical five-bay faade is anchored by a central entrance framed with simple pilasters, topped by a transom window and cornice. A single-story ell extends from the rear at an angle, running parallel to Hilldale Avenue, adding to its historic character. Once part of a thriving agricultural community in the 18th and 19th centuries, the home reflects the heritage of a region that even petitionedunsuccessfullytwice to become part of neighboring Newton. Rich with history and architectural charm, the Captain Jonathan Currier House offers a rare opportunity to own a true New England treasure. Showings by appointment onlyplease do not enter the property or driveway without an agent present.

Property Details of 21 Currier Street

Property Details

Interior Features

Exterior Features

Utilities and Appliances

Map Location

Driving Directions

Broker Reciprocity 

Copyright 2025 PrimeMLS, Inc. All rights reserved. This information is deemed reliable, but not guaranteed. The data relating to real estate displayed on this display comes in part from the IDX Program of PrimeMLS. The information being provided is for consumers’ personal, non-commercial use and may not be used for any purpose other than to identify prospective properties consumers may be interested in purchasing. Data last updated November 13, 2025 11:53 AM EST

 

Hi there! How can we help you?

Contact us using the form below or give us a call.

Send Us A Message:

I agree to receive marketing and customer service calls and text messages from Jen Tabb. To opt out, you can reply 'stop' at any time or click the unsubscribe link in the emails. Consent is not a condition of purchase. Msg/data rates may apply. Msg frequency varies. Privacy Policy.

Do not fill in this field:

This site is protected by reCAPTCHA and the Google Privacy Policy and Terms of Service apply.